Boulevard Zuid 8

Egmond aan Zee
€ 995.000,- k.k.
  • 206 m2
  • 702 m3
  • 5
Omschrijving

Zeer riant wonen op een plek waar elke dag voelt als vakantie, met de zee als buurman! Stelt u zich eens voor: wakker worden met het ruisen van de zee op de achtergrond, ontbijten in een lichte woonkamer en ’s avonds de zon zien ondergaan vanaf uw eigen balkon.

Zeer riant wonen op een plek waar elke dag voelt als vakantie, met de zee als buurman!

Stelt u zich eens voor: wakker worden met het ruisen van de zee op de achtergrond, ontbijten in een lichte woonkamer en ’s avonds de zon zien ondergaan vanaf uw eigen balkon.
Op steenworp afstand van het strand én het centrum van Egmond aan Zee staat deze unieke 2-onder-1-kapwoning met een woonoppervlak van maar liefst 206 m². Een zeldzaamheid in deze omgeving! Hier geniet u van een combinatie van authentieke details, zoals een erker, en inpandig balkon, met een modern en luxe afgewerkt interieur. Vanuit verschillende vertrekken in de woning – waaronder de woonkamer, keuken, slaapkamer en inpandig balkon – heeft u uitzicht richting de zee en de ondergaande zon.
Met vier eigen parkeerplaatsen, meerdere buitenruimtes, veel privacy in de tuin en de mogelijkheid om een kantoor of zelfs een zomerhuis te realiseren, biedt dit huis alles voor wie ruimte, comfort en strandleven wil combineren.

Indeling woonhuis

Begane grond:
Via de voortuin bereikt u de entree van de woning. De lichte woonkamer met erker en open haard vormt het hart van het huis. De op maat gemaakte keuken, uitgevoerd met hoogwaardige Miele-apparatuur en een interactieve Amerikaanse koelkast, nodigt uit tot uitgebreid koken. Achter de keuken ligt een royale bijkeuken met volop bergruimte en aansluitingen. Verder bevindt zich hier een extra kamer die uitstekend dienst kan doen als kantoor of praktijkruimte.

Eerste verdieping:
Op de eerste verdieping bevinden zich drie ruime, lichte slaapkamers en een royale badkamer met ligbad, inloopdouche, dubbele wastafel en toilet. Vanzelfsprekend heeft de badkamer vloerverwarming.

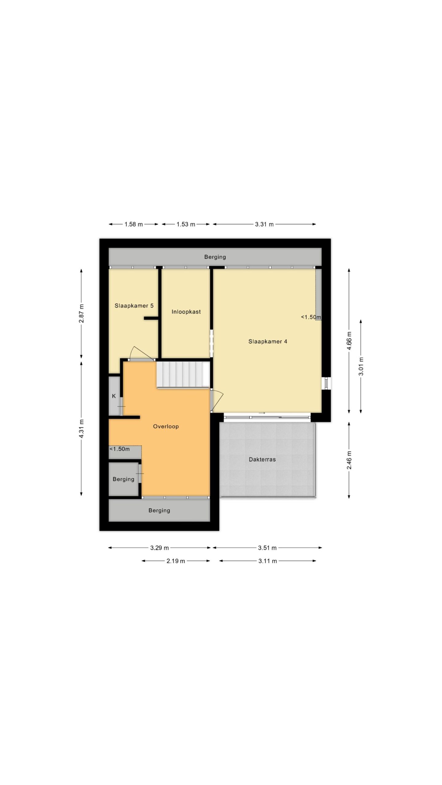
Tweede verdieping:
Hier vindt u nog eens twee kamers. De grootste beschikt over een inloopkast en toegang tot een inpandig balkon.

Buitenruimtes
De woning beschikt over zowel een voor- als achtertuin. De achtertuin biedt veel privacy en is een heerlijke plek om te ontspannen, terwijl u op de tweede verdieping vanaf het inpandige balkon en terras kunt genieten van het weidse uitzicht over zee en de ondergaande zon.

Bijzonderheden op een rij
* Woonoppervlak maar liefst 206 m²
* Authentieke 2-onder-1-kap met modern interieur
* Op maat gemaakte keuken met Miele-apparatuur en Amerikaanse koelkast
* 3-4 eigen parkeerplaatsen
* Vloerverwarming op begane grond
* 23 Zonnepanelen
* Voor- en achtertuin alsmede een inpandig balkon
* Uitzicht op zee vanaf meerdere verdiepingen
* Erker en dakkapellen
* Mogelijkheid tot kantoor of gelijkvloerse slaap- en badkamer
* Slaapkamer met inloopkast en inpandig balkon op de tweede verdieping
* Rustig gelegen en toch op steenworp afstand van centrum, strand en boulevard
* Slechts 40 minuten rijden van Amsterdam

Deze woning is een zeldzame kans voor wie royaal, comfortabel en sfeervol wil wonen op een van de mooiste locaties van Egmond aan Zee. Kom zelf ervaren hoe het is om hier te wonen. Maak een afspraak voor een bezichtiging en laat u betoveren door de ruimte, het licht en het uitzicht.

Lees meerLees minder

Download de brochure

Bekijk in alle gemak de brochure van deze woning

Download
Specificaties

Kenmerken

  • Prijs: € 995.000,- Kosten koper
  • Adres Boulevard Zuid 8
  • Postcode / plaats 1931 AA Egmond aan Zee
  • Woonoppervlakte ca. 206 m2
  • Status Beschikbaar
  • Aanvaarding In overleg
  • Soort woonhuis Twee onder een kapwoning
  • Soort bouw Bestaande bouw
  • Soort dak Zadeldak
  • Onderhoud binnen Goed
  • Onderhoud buiten Goed
  • Verwarming Cv ketel, vloerverwarming geheel
  • Warm water Cv ketel
  • CV-ketel type Gas
  • CV-ketel bouwjaar 2019
  • CV-ketel eigendom Eigendom
  • Ligging Vrij uitzicht, zeezicht
  • Hoofdtuin Achtertuin
  • Oppervlakte hoofdtuin ca. 60 m2
  • Achterom 1
  • Kwaliteit tuin Verzorgd
  • Externe bergruimte ca. 6 m2
  • Oppervlakte gebouwgebonden ca. 11 m2
  • Inhoud ca. 702 m3
  • Perceeloppervlakte ca. 297 m2
  • Gebruiksoppervlakte wonen ca. 206 m2
  • Bouwjaar 1951
  • Tuin Zuidoost
  • Energieklasse A
  • Isolatie Muurisolatie, dubbel glas
  • Aantal kamers 7 kamers
  • Aantal slaapkamers 5 slaapkamers
  • Aantal badkamers 1 badkamer
  • Badkamervoorzieningen Ligbad, toilet, dubbele wastafel, inloopdouche
  • Aantal woonlagen 3 woonlagen
  • Voorzieningen Mechanische ventilatie, buitenzonwering, rookkanaal, schuifpui, dakraam, zonnepanelen, natuurlijke ventilatie
  • Schuur / berging Vrijstaand hout
  • Aantal schuren / bergingen 1
  • Parkeerfaciliteiten Op eigen terrein
  • Garage Geen garage
Media

Plattegronden

Diensten | Winkel & Buis makelaars en taxateurs in Egmond aan Zee
Zoekopdracht

Niet gevonden wat u zocht?

Laat ons u helpen en stel een zoekopdracht in.

Gratis zoekopdracht

Zoekresultaten filteren

Neem contact op

    Nieuwsbrief

    Gratis zoekopdracht

      Bezichtiging plannen

      Wij nemen zo snel mogelijk contact met u op