Driehuizerweg 8 286

Egmond aan den Hoef
€ 215.000,- k.k.
  • 51 m2
  • 169 m3
  • 2
Omschrijving

Wakker worden met het zachte licht dat over het water glinstert, koffie drinken met uitzicht op de vijver en de dag afsluiten met een wandeling door de duinen of langs het strand — hier voelt elke dag als vakantie! Binnen heerst een prettige, ontspannen sfeer. Grote raampartijen bieden vrij uitzicht…

Wakker worden met het zachte licht dat over het water glinstert, koffie drinken met uitzicht op de vijver en de dag afsluiten met een wandeling door de duinen of langs het strand — hier voelt elke dag als vakantie!

Binnen heerst een prettige, ontspannen sfeer. Grote raampartijen bieden vrij uitzicht op de vijver en halen buiten op een natuurlijke manier naar binnen. In 2024 zijn er twee airco’s geplaatst — in de woonkamer en master bedroom — die zowel kunnen koelen als verwarmen, waardoor comfort gegarandeerd is in elk seizoen. Extra praktisch: de inventaris is inclusief, waardoor de woning direct klaar is voor gebruik.

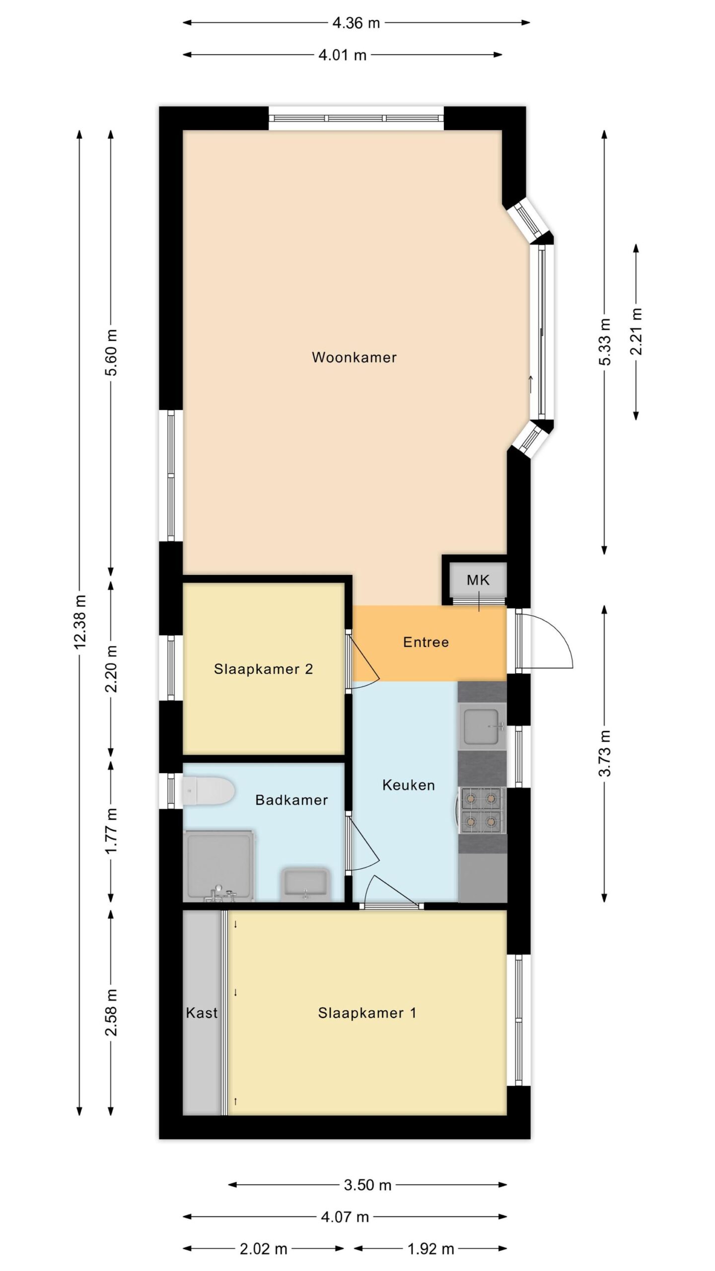
Indeling:
Via de entree kom je in de ruime en lichte woonkamer, die direct opvalt door de frisse beach-look afwerking en de charmante erker. Grote raampartijen brengen het buitengevoel naar binnen en bieden een prachtig uitzicht over het water.

De open keuken is netjes afgewerkt en voorzien van diverse inbouwapparatuur, waardoor koken hier moeiteloos samengaat met gezellig samenzijn.

De woning beschikt over twee slaapkamers, geschikt voor in totaal 5 personen. De badkamer is compleet ingericht met douche, toilet en wastafelmeubel.

Buiten geniet je van een ruim omheind perceel met zicht op de vijver: een fijne plek om te ontspannen, te lezen of te genieten van de natuur rondom. Uw fietsen en gereedschap kunt u kwijt in de fietsenberging.
De woning is voorzien van kunststof gevelbekleding (2021), wat zorgt voor een verzorgde uitstraling en minimaal onderhoud.

Recreatiepark De Woudhoeve ligt op een prachtige locatie tussen Egmond aan Zee en Bergen, met het strand en de duinen dichtbij en plaatsen als Alkmaar en Castricum op fietsafstand. Het park zelf biedt uitgebreide voorzieningen zoals een restaurant, receptie, zwembad, indoor speeltuin, speeltuin en meertje.

Deze woning is ideaal voor eigen gebruik, verhuur of een combinatie van beide — een veelzijdige plek om van te genieten én te investeren!

Bijzonderheden:
– Kunststof buitenbekleding 2021;
– 2 airco’s 2024; woonkamer en master bedroom, kan verwarmen en koelen;
– Grenzend aan en uitzicht op vijver;
– Vraagprijs is inclusief gehele inventaris;
– Op fietsafstand van Egmond aan Zee, Bergen, Alkmaar en Castricum;
– Faciliteiten op het park: receptie, restaurant, indoor speeltuin, zwembad, speeltuin, (zwem)meertje;
– Strand en duinen in de buurt;
– Ruim perceel;
– Voor eigen gebruik, voor verhuur of een combinatie ervan.
– Parkkosten € 2.367,18 per jaar

Lees meerLees minder

Download de brochure

Bekijk in alle gemak de brochure van deze woning

Download
Specificaties

Kenmerken

  • Prijs: € 215.000,- Kosten koper
  • Adres Driehuizerweg 8 286
  • Postcode / plaats 1934 PR Egmond aan den Hoef
  • Woonoppervlakte ca. 51 m2
  • Status Beschikbaar
  • Aanvaarding In overleg
  • Soort woonhuis Vrijstaande woning
  • Soort bouw Bestaande bouw
  • Soort dak Zadeldak
  • Onderhoud binnen Goed tot uitstekend
  • Onderhoud buiten Goed tot uitstekend
  • Verwarming Cv ketel
  • Warm water Cv ketel
  • CV-ketel type Gas
  • CV-ketel bouwjaar 2010
  • CV-ketel eigendom Lease
  • Ligging Aan park, beschutte ligging, landelijk gelegen
  • Hoofdtuin Voortuin
  • Oppervlakte hoofdtuin ca. 179 m2
  • Kwaliteit tuin Verzorgd
  • Externe bergruimte ca. 5 m2
  • Inhoud ca. 169 m3
  • Perceeloppervlakte ca. 340 m2
  • Gebruiksoppervlakte wonen ca. 51 m2
  • Bouwjaar 2010
  • Tuin Zuid
  • Energieklasse C
  • Isolatie Dubbel glas
  • Aantal kamers 3 kamers
  • Aantal slaapkamers 2 slaapkamers
  • Aantal badkamers 1 badkamer
  • Badkamervoorzieningen Toilet, douche, wastafel, wastafelmeubel
  • Aantal woonlagen 1 woonlagen
  • Voorzieningen Mechanische ventilatie, tv kabel, airconditioning
  • Schuur / berging Vrijstaand hout
  • Aantal schuren / bergingen 1
  • Parkeerfaciliteiten Op eigen terrein
  • Garage Geen garage
Media

Plattegronden

Diensten | Winkel & Buis makelaars en taxateurs in Egmond aan Zee
Zoekopdracht

Niet gevonden wat u zocht?

Laat ons u helpen en stel een zoekopdracht in.

Gratis zoekopdracht

Zoekresultaten filteren

Neem contact op

    Nieuwsbrief

    Gratis zoekopdracht

      Bezichtiging plannen

      Wij nemen zo snel mogelijk contact met u op