Driehuizerweg 8 245

Egmond aan den Hoef
€ 182.500,- k.k.
  • 50 m2
  • 196 m3
  • 2
Omschrijving

** OPEN HUIS: ZATERDAG 28 MAART A.S. VAN 11.00 TOT 14.00 UUR Tijdens het open huis bent u zonder afspraak welkom om de woning te bezichtigen en informatie te ontvangen over het park. Schikt dit moment niet? Dan plannen wij graag een andere afspraak met u in. ** Keurig…

** OPEN HUIS: ZATERDAG 28 MAART A.S. VAN 11.00 TOT 14.00 UUR
Tijdens het open huis bent u zonder afspraak welkom om de woning te bezichtigen en informatie te ontvangen over het park. Schikt dit moment niet? Dan plannen wij graag een andere afspraak met u in. **

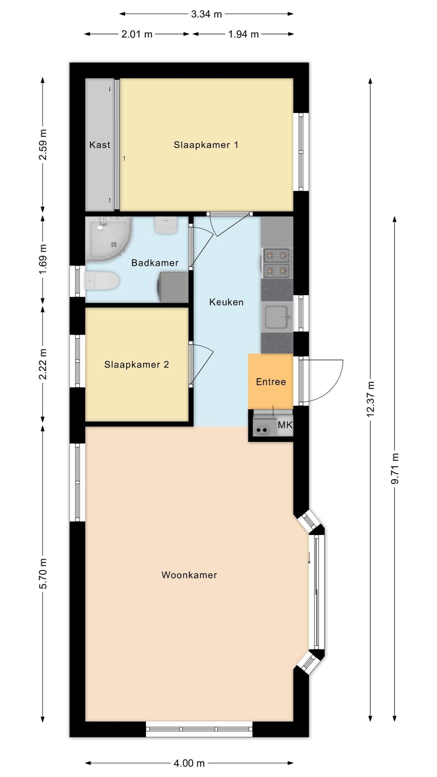
Keurig recreatiechalet (type Condor van 50 m2) voorzien van kunststof buitenbekleding! De recreatiewoning staat op een perceel eigen grond van 235 m2 en beschikt over een ruime buitenruimte met eigen berging en parkeerplaats.

De woning is in zeer goede staat van onderhoud en keurig netjes afgewerkt. Er zijn twee slaapkamers waarvan de ouderslaapkamer is uitgerust met een ruime schuifkast. De woonkamer is riant en ruim en voorzien van schuifdeur naar de tuin. Er is verder een open keuken met onder meer een vaatwasser, combi oven/magnetron en een nieuwe koel/vriescombinatie.

De tuin is relatief onderhoudsarm ingericht met onder meer een ruim zonneterras op het zuiden gelegen. Er is verder ruimte om uw auto te parkeren en uw fietsen, tuinmeubilair en gereedschap kunnen in de aparte berging.

Kortom een zeer complete recreatiewoning waar u weinig onderhoud aan heeft en er dus zelf optimaal van kunt genieten. Uiteraard kunt u het ook (deels) verhuren.

Goed om te weten:
* Ruim chalet met 51 m2 woonoppervlakte
* Twee vaste slaapkamers
* Prima onderhouden; recent in zijn geheel opgeknapt
* Lichte, ruime woonkamer met schuifpui
* Volledige onderhoudsarme kunststof buitenbekleding
* Perceel eigen grond van 235 m2
* Goed geïsoleerd
* Luxe multifunctionele verlichting
* Riante buitenruimte met plaats voor een berging en een eigen parkeerplek
* Centrale verwarming met HR combi Cv-ketel
* Parkkosten per jaar: € 2.367,18

Lees meerLees minder

Download de brochure

Bekijk in alle gemak de brochure van deze woning

Download
Specificaties

Kenmerken

  • Prijs: € 182.500,- Kosten koper
  • Adres Driehuizerweg 8 245
  • Postcode / plaats 1934 PR Egmond aan den Hoef
  • Woonoppervlakte ca. 50 m2
  • Status Beschikbaar
  • Aanvaarding In overleg
  • Soort woonhuis Vrijstaande woning
  • Soort bouw Bestaande bouw
  • Soort dak Zadeldak
  • Onderhoud binnen Goed
  • Onderhoud buiten Goed
  • Verwarming Cv ketel
  • Warm water Cv ketel
  • CV-ketel type Gas
  • CV-ketel bouwjaar 2020
  • CV-ketel eigendom Eigendom
  • Ligging Aan park, beschutte ligging
  • Hoofdtuin Tuin rondom
  • Kwaliteit tuin Normaal
  • Externe bergruimte ca. 5 m2
  • Inhoud ca. 196 m3
  • Perceeloppervlakte ca. 235 m2
  • Gebruiksoppervlakte wonen ca. 50 m2
  • Bouwjaar 2006
  • Tuin opp. 175 m
  • Isolatie Dubbel glas
  • Aantal kamers 3 kamers
  • Aantal slaapkamers 2 slaapkamers
  • Aantal badkamers 1 badkamer
  • Badkamervoorzieningen Toilet, douche, wastafelmeubel, wasmachineaansluiting
  • Aantal woonlagen 1 woonlagen
  • Voorzieningen Mechanische ventilatie, stoomcabine
  • Schuur / berging Vrijstaand hout
  • Aantal schuren / bergingen 1
  • Parkeerfaciliteiten Op eigen terrein
  • Garage Parkeerplaats
Media

Plattegronden

Diensten | Winkel & Buis makelaars en taxateurs in Egmond aan Zee
Zoekopdracht

Niet gevonden wat u zocht?

Laat ons u helpen en stel een zoekopdracht in.

Gratis zoekopdracht

Zoekresultaten filteren

Neem contact op

    Nieuwsbrief

    Gratis zoekopdracht

      Bezichtiging plannen

      Wij nemen zo snel mogelijk contact met u op